在忙碌的都市生活中,总有一处宁静的港湾让人心生向往。 今天,就让我们一起走进这样一处惊艳的居所,它坐落在风景如画的台州仙居,将两套大平层巧妙打通,形成了一座面积达到500㎡的奢华豪宅。 站在这里,远山近水一览无余,仿佛整个世界都在你的脚下展开。 这座豪宅的设计,不仅体现了对空间的极致利用,更融入了自然之美,让居住者能够时刻感受到大自然的馈赠。 从选址到布局,从细节到整体,无不透露出设计师的匠心独运和居住者的非凡品味。 豪宅的地理位置得天独厚,依山傍水,景色宜人。 设计师巧妙地将两套大平层打通,...
在忙碌的都市生活中,总有一处宁静的港湾让人心生向往。
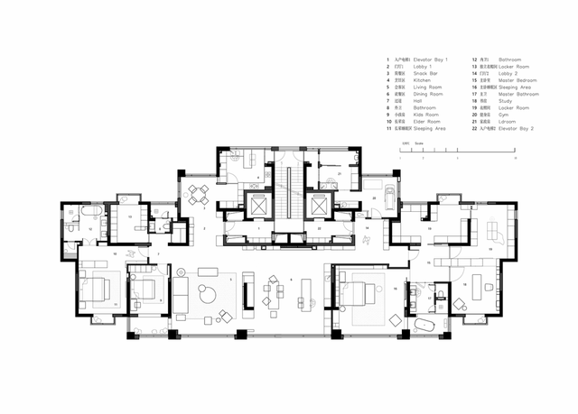
今天,就让我们一起走进这样一处惊艳的居所,它坐落在风景如画的台州仙居,将两套大平层巧妙打通,形成了一座面积达到500㎡的奢华豪宅。
站在这里,远山近水一览无余,仿佛整个世界都在你的脚下展开。

这座豪宅的设计,不仅体现了对空间的极致利用,更融入了自然之美,让居住者能够时刻感受到大自然的馈赠。
从选址到布局,从细节到整体,无不透露出设计师的匠心独运和居住者的非凡品味。

豪宅的地理位置得天独厚,依山傍水,景色宜人。
设计师巧妙地将两套大平层打通,形成了一个宽敞通透的生活空间。一进入豪宅,首先映入眼帘的便是那面巨大的落地窗,它将室外的山水美景尽收眼底,仿佛一幅流动的画卷。
无论是旭日初升,还是夕阳西下,这里的景色都让人流连忘返。

在布局上,设计师充分考虑了居住者的生活需求和审美习惯。
整个空间被巧妙地划分为不同的功能区域,既保证了居住的舒适性,又体现了空间的层次感。卧室区域位于空间的两侧,为居住者提供了一个静谧的休息环境。

而中间区域则是开放的客厅、茶室和餐厅,这里不仅是家人欢聚的场所,更是展示主人品味的重要空间。

玄关作为进入豪宅的第一道门槛,其设计自然也是别出心裁。
黑胡桃木的材质搭配无把手的柜门设计,不仅彰显了高级感,更在细节中流露出温暖与美好。随着光线的变化,玄关空间也呈现出不同的韵味,仿佛每一处都充满了生命力。


步入客厅,更是让人眼前一亮。长达3米多的落地玻璃窗将整个空间照亮,湖景、山景、云景如同画卷般在室内展开。


设计师在吊顶设计上保留了原有的高低错落感,通过简约而层次分明的线条,营造出一种恰到好处的光影效果。
坐在客厅中,仿佛置身于一幅山水画中,让人心旷神怡。


餐厅的设计同样不失格调与品味。
轻盈清雅的氛围中,几何铁艺线条的餐椅与亚克力材质的餐桌相得益彰,共同营造出一种悬浮般的高级感。


在这里用餐,不仅是一次味蕾的享受,更是一次视觉与心灵的盛宴。

厨房空间同样充满了设计感。
开放式的布局,让整个厨房拥有开阔的视野和通透的光线。


黑色餐桌与菱格餐椅的搭配,不仅灵动多变,更在黑白色调的映衬下消弭了空间的沉闷感。无论是准备食材还是烹饪美食,这里都能让你感受到别样的乐趣与惬意。

当夜幕降临,回到主卧的温暖怀抱中,你会发现这里同样充满了设计师的巧思与匠心。
以静思为主题的主卧空间,将窗外的山水美景作为最独特的点缀。


在材质与色调的搭配下,主卧不仅显露出简约低调的沉稳气质,更在柔软温情的内里中透露出平和、舒适与惬意的生活氛围。


每天从这样宽敞舒适的主卧套房中醒来,无疑是一种难得的享受与体验。


卫浴空间的设计同样让人惊艳。
全透明式的玻璃结构在保证私密性的同时,赋予了居住者一种深入自然的沐浴体验。

眼前的景色与远处的山峰交相辉映,仿佛让你置身于大自然的怀抱之中,尽享舒适与宁静。


此外,衣帽间的设计也充分考虑了实用性与美观性的结合。
简约的色调与大面积的储物柜相得益彰,满足了生活的储物需求。同时,独特的格栅门、衣橱和搁架等细节之处也充满了生活感与品质感。

在这座500㎡的豪宅中,每一处都充满了设计师的匠心独运和居住者的非凡品味。
无论是晴天的阳光洒满室内,还是雨天的山水云雾缭绕窗外,这里都能让你感受到生活的美好与诗意。

这样的家不仅惊艳了时光,更让诗意生活具象化地呈现在我们眼前。那么,你是否也被这座豪宅所惊艳了呢?